Aller au contenu principal
363m²
5 images
Avenue Colombier 5 , 59780 - Baisieux

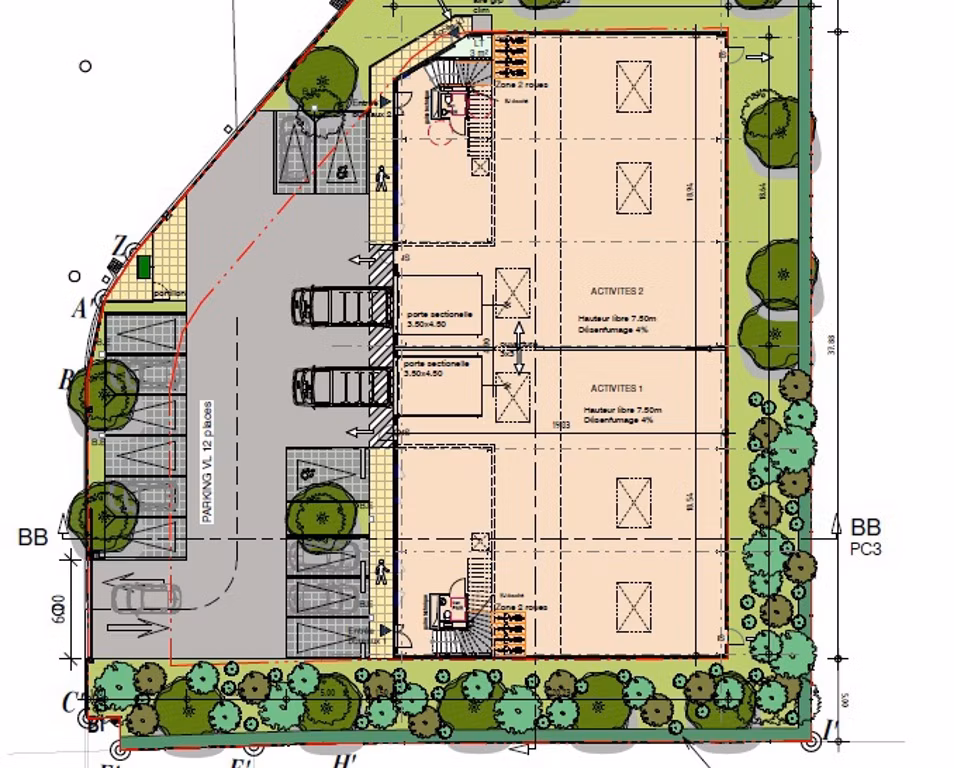
Cet entrepôt industriel à vendre à Baisieux est neuf et sera livré casco à la fin de la construction. Il offre une surface de +/- 363 m² au sol avec une mezzanine de +/- 60 m².

L'immeuble se trouve dans la zone artisanale du Saint Calixte à Baisieux. Cette localisation place la propriété en bordure de la France et de la Belgique. Elle est également positionnée à l'est de Lille et Lesquin.

L'accès routier est direct avec une proximité immédiate de la N7 ainsi que de l'E42/A27. Ces axes facilitent les déplacements pour les activités industrielles.

Les dimensions précises sont de +/- 363 m² pour la surface principale et +/- 60 m² pour la mezzanine. La livraison casco permet une personnalisation selon les besoins de l'acquéreur une fois la construction achevée.

Baisieux abrite cette zone artisanale du Saint Calixte, adaptée aux usages industriels. La position frontalière avec la Belgique et la proximité de Lille en font un emplacement pratique pour les opérations transfrontalières ou régionales.

Pour les entreprises cherchant un entrepôt dans cette région, les connexions via N7 et E42/A27 assurent une accessibilité routière immédiate. L'est de Lille/Lesquin est à proximité, soutenant les flux logistiques.

Contactez-nous pour obtenir plus d'informations sur cet entrepôt neuf à Baisieux ou pour organiser une visite.

Bâtiment

Parking extérieur
Oui
Type de toit
Toit plat
Hauteur libre
7.5
Porte sectionnelle
Oui
Type de construction
Béton
Hauteur libre max
7.5
Nombre de portes sectionnelles
1
Aire de manoeuvre
Oui

Equipement de base

Accès handicapés
Non
Ascenseur
Non
Double vitrage
Oui
Chauffage
Pas installé
Bureau des magasiniers
Oui

En chiffres

Surface bâtie
363
Hauteur des plafonds
7.5
Entrepôt
363 m²

Sécurité

Sortie de secours
Oui

Équipements techniques

Isolation
Oui

Spécificités terrain

Type d'environnement
Parc industriel
Route d'accès
Oui

Type de matériau & évaluation

Type de revêtement de sol
Béton poli

Localisation

Avenue Colombier 5 , 59780 - Baisieux

Contactez-nous pour plus d'informations

Nous contacter