Kantoor te huur
Het bedrijvenpark Park Hill biedt bijna 18.000 m² kantoorruimte verdeeld over vier gebouwen. Dit aanbod van kantoren te huur in Machelen onderscheidt zich door zijn eenvoud en gunstige ligging met hoge kwaliteitsstandaarden, tegen een gematigde huurprijs.
Park Hill geniet van een onmiddellijke nabijheid tot het station van Diegem. Het centrum van Diegem ligt op enkele minuten loopafstand. Het centrum van Zaventem is binnen enkele minuten met de auto bereikbaar. De ringweg is eveneens vlakbij, wat de verplaatsingen vergemakkelijkt.
Dit park is gelegen in een zakenwijk waar verschillende internationale bedrijven ervoor gekozen hebben om hun hoofdkantoor of filialen te vestigen. De professionele omgeving is dan ook goed ingeburgerd in de zone.
Diverse faciliteiten zijn in de nabijheid beschikbaar, waaronder hotels, restaurants, winkels, banken en tankstations. Deze overvloed aan diensten voldoet aan de dagelijkse behoeften van de gebruikers.
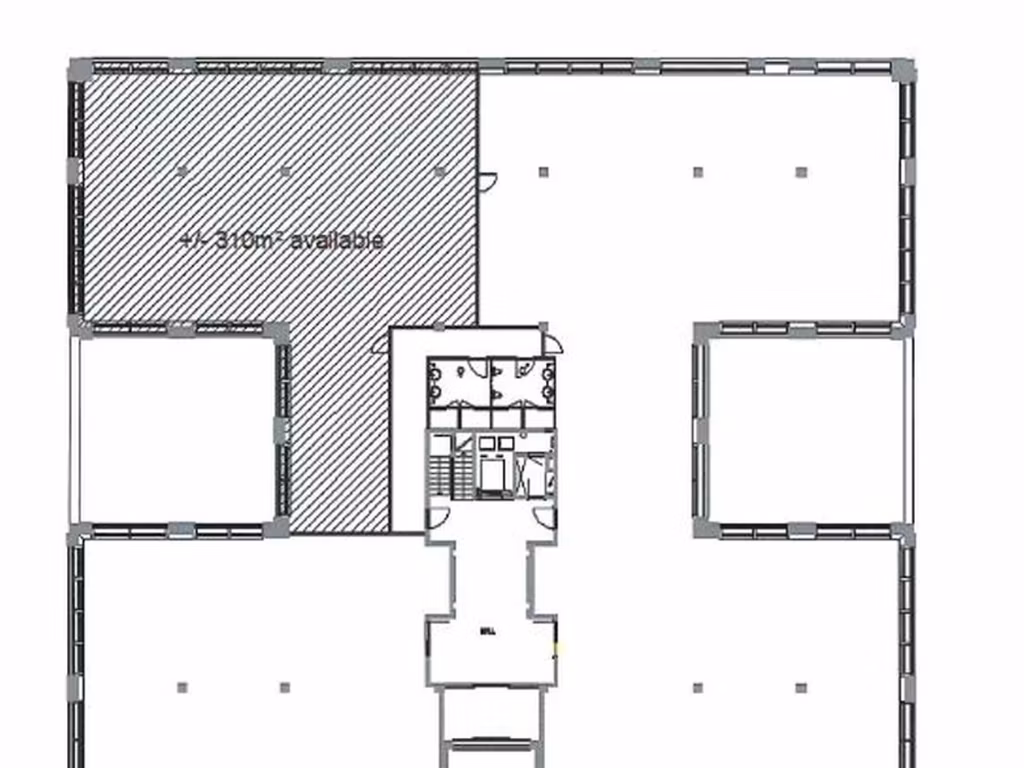
Belangrijke punten om op te merken zijn een grote beschikbare kantoorruimte, een interessante huurprijs en een parkeernorm van 1 plaats per 40 m². Deze elementen dragen bij aan het geschikt maken van het aanbod voor professionele activiteiten.
Voor meer details of om een bezoek aan de kantoren in Park Hill te regelen, contacteer ons nu.
Gebouw
- Parking binnen
- Ja
- Parking buiten
- Ja
- Aantal parking binnen
- 4
- Aantal parking buiten
- 8
Basisuitrusting
- Keuken
- Ja
- Toiletten M/V
- Ja
- Type verwarming
- Gas
Afwerking
- Vloerbedekking - type
- Vasttapijt
Veiligheid
- Alarm
- Ja
- Receptioniste
- Ja


