Aller au contenu principal
601m²
4 images
Avenue des Nerviens 85 , 1040 - Brussels

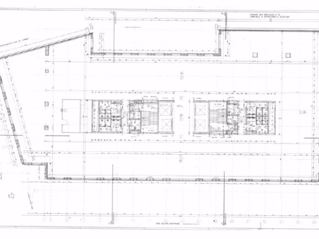
Bureau à louer à Bruxelles dans un bâtiment rénové. Ce bâtiment rénové est situé le long du Parc Cinquantenaire. Il se trouve à proximité des institutions européennes.

Pour les entreprises cherchant un espace de bureaux à Bruxelles, cette localisation offre un accès direct au Parc Cinquantenaire. Le bâtiment rénové bénéficie d'une position le long de ce parc emblématique de la ville. La proximité des institutions européennes facilite les déplacements quotidiens pour les activités professionnelles liées à ces organismes.

Les professionnels immobiliers notent l'importance d'une telle implantation dans le paysage bruxellois. Un bâtiment rénové comme celui-ci répond aux besoins des occupants en termes de modernité. Situé le long du Parc Cinquantenaire, il permet une intégration harmonieuse dans l'environnement urbain.

La zone autour du Parc Cinquantenaire est reconnue pour sa centralité à Bruxelles. Être à proximité des institutions européennes représente un atout pour les locataires B2B. Ce bureau à louer s'inscrit dans cette dynamique, avec un bâtiment rénové prêt à accueillir des activités professionnelles.

Les entreprises de Bruxelles apprécient les emplacements qui combinent accessibilité et cadre verdoyant. Le long du Parc Cinquantenaire, ce bâtiment rénové propose une base opérationnelle solide. La courte distance vers les institutions européennes optimise les trajets pour les équipes.

Dans le secteur de l'immobilier professionnel à Bruxelles, les options comme celle-ci attirent les acteurs économiques. Un bâtiment rénové en position privilégiée le long du parc répond à des critères standards de location de bureaux. Contactez-nous pour discuter de cette opportunité de location de bureau à Bruxelles.

Contactez notre équipe dès maintenant pour obtenir plus d'informations sur ce bureau à louer ou pour planifier une visite sur site.

Composition

TypeÉtageSurface totaleDisponibilité
Immeuble de bureaux01601 m²
Immeuble de bureaux-

Equipement de base

Cuisine
Oui
Toilettes H/F
Oui
Chauffage
Gaz
Type de cuisine
Équipée

Type de matériau & évaluation

Type de revêtement de sol
Tapis plain

Sécurité

Réceptioniste
Oui

Certificats énergétiques

Label PEB
C

Localisation

Avenue des Nerviens 85 , 1040 - Brussels

Contactez-nous pour plus d'informations

Nous contacter